- : :
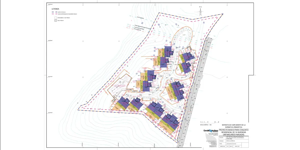
The Marbella-based architecture firm Gonzalez & Jacobson presents the preliminary design for a residential complex of 14 semi-detached single-family homes, located in the Elviria area of Marbella, Malaga.
The project has been conceived by the architects in response to the demands of the current residential market, prioritizing architectural quality, the functionality of the spaces, and integration with the surrounding environment. The homes will feature a carefully defined set of specifications, incorporating high-quality materials and construction solutions in accordance with current real estate market standards in the area.
Every detail of the architectural project has been studied to guarantee comfort, efficiency, and architectural value, ensuring that no relevant aspect is overlooked in its development.
The site plans for the residential complex are attached, defining the placement of the homes within the plot and their relationship to the exterior spaces.


